Расположения
Характеристики
Планировка
Документация
3D тур
Записаться на просмотр
Эксклюзивная вилла
на второй береговой линии Геленджика
Вилла расположена в идеальном месте - на берегу Черного моря в городе курорте - Геленджик, в окружении красивейших гор и моря
О вилле
В распоряжении будущих жильцов 3-х этажный дом со своим участком и собственным паркингом. Периметр участка обнесён каменным забором. Парковка представляет из себя открытого типа площадку на два автомобиля.
Подогреваемый бассейн с проложенными коммуникациями для дополнительного оборудования.
Энергоэффективные стеклопакеты с повышенной шумоизоляцией
Возможность организовать полноценный мансардный этаж 84,79 м²
Фасад - камень травентин
Откатные ворота Alutech c калиткой. Европейское качество
Подготовлена инфраструктура для видеонаблюдения
Теплый пол под всем керамогранитом
Летняя кухня с зоной барбекю
Район ЖК Акватория
Всего 200 метров
до моря
Все коммуникации:
газ, вода, свет
Слово архитектора виллы Анатолия Шупика
Узнайте чем вдохновлялся архитектор и как происходило проектирование виллы
Обзор виллы
Подогреваемый бассейн
Проложены коммуникации для любого дополнительного оборудования
Теплый двор
Подогрев плитки двора - всегда сухой двор, даже зимой
Комфорт во всем
Зарядка для электромобилей и дизельный генератор на заднем дворе
Технические характеристики виллы
Общая площадь виллы
Жилая площадь
Участок
463,5 м²
232 м²
4,7 сотки
Центральное водоснабжение
Система отопления
Электричество
Возможность установки системы фильтрации и минерализации.
Двухконтурный газовый котёл для отопления дома и отдельный котел отопления бассейна
Мощность 15 кВт. Заложены коммуникации для увеличения мощности
Получите альбом презентации виллы
Нажимая на кнопку вы принимаете политику конфиденциальности
Хотите получить
полную презентацию дома ?
Смотрите как идет процесс строительство виллы в прямом эфире. Камера работает 24/7. Наблюдайте в любое удобное вам время
Наблюдайте за
процессом строительства
Инвестиционная строительная компания. Построено более 100 жилых и коммерческих объектов в краснодарском крае. В том числе: ЖК Альбатрос, ЖК Семейный, сеть отелей Дача. Отель, ресторан, Атмосфера.
Застройщик, группа компаний Артель.
Растущий и
развивающийся город
Сделайте глоток свежего
воздуха
Повышенный спрос на недвижимость в городе
Геленджик один из самых быстроразвивающихся городов черноморского побережья. Большое количество государственных и частных инвестиций поступает сюда ежегодно
Воздух Геленджика - это свежий морской бриз и целебный аромат пицундских сосен, растущих прямо рядом с Вашим домом
Спрос на недвижимость в городе постоянно растет, особенно после принятия нового генплана. Это гарантирует будущему владельцу настоящую уникальность его домовладения. Ни одной подобной виллы больше не появится в этом районе города.
Инвестиционная привлекательность проекта
Уникальное предложение!
Единственная подобная вилла в этом районе Геленджика!
Нажимая на кнопку вы принимаете политику конфиденциальности
Эргономичная планировка от опытного архитектора
Дом построен с полным пониманием специфики городской застройки Геленджика и будет действительно комфортным местом для проживания большой семьи и приема гостей.
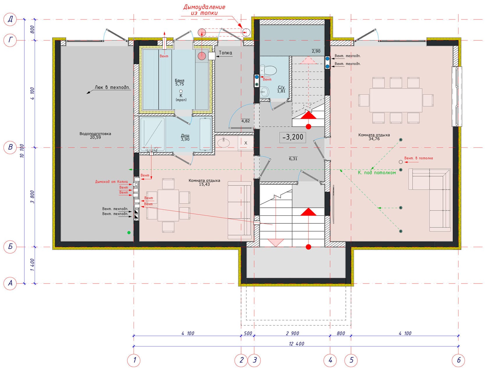
Планировка первого этажа
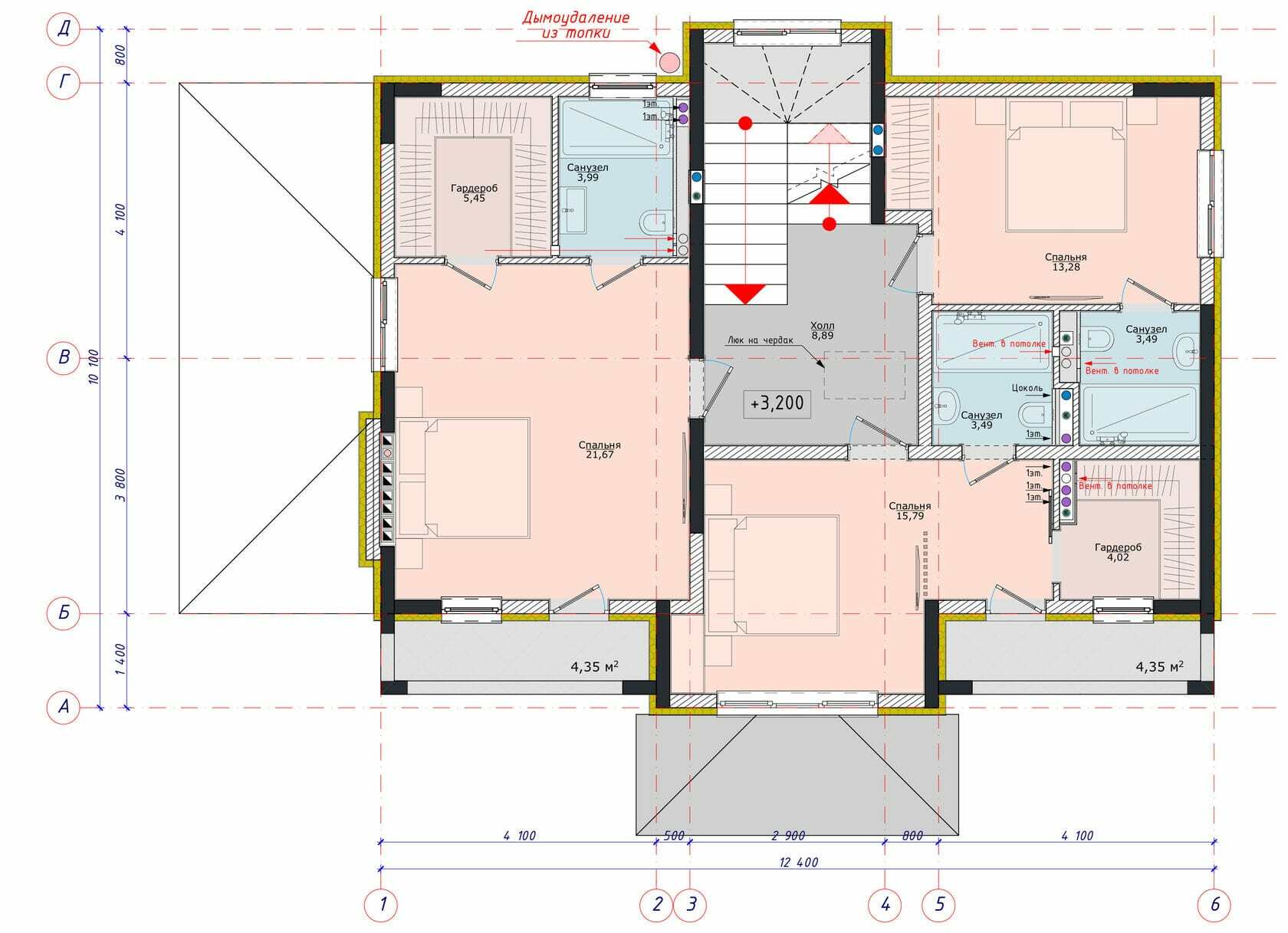
Планировка второго этажа
Планировка цокольного этажа
Кухня-гостиная с выходом на летнюю кухню, просторная гардеробная, гостевая спальня с собственным санузлом.
80 кв.м
Три спальни, второй санузел.
88,7 кв.м
Спа-зона с баней, душевая, санузел, комната отдыха, мини-кухня, техническое помещение.
96,2 кв.м
3D обзор вашей будущей виллы
Где располагается вилла?
Записаться на просмотр дома
Единственная подобная вилла в этом районе Геленджика!
Нажимая на кнопку вы принимаете политику конфиденциальности
Made on
Tilda